Home
In renovatie
Te koop
Realisaties
Reno partner
Over ons
Jobs
Volg ons!
Home
Realisaties
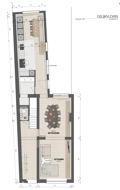
Guido Gezellestraat 17, 8790 Waregem
Guido Gezellestraat 17, 8790 Waregem
Bekijk alle
VERKOCHT!
Home
In renovatie
Te koop
Realisaties
Reno partner
Over ons
Jobs